Local en Gijón (Asturias) –

155.000 €

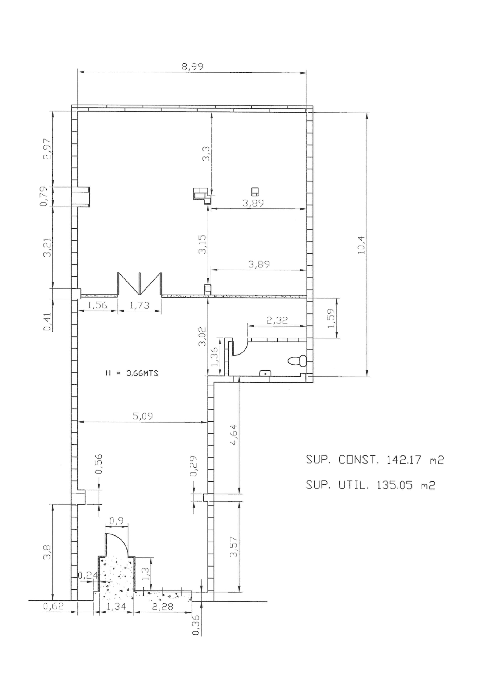
Disponible en venta un excepcional local comercial en la vibrante ciudad de Gijón, ideal para emprendedores con visión. Este espacioso inmueble cuenta con una superficie útil de 150 metros cuadrados, ofreciendo un amplio abanico de posibilidades para adaptar el espacio a las necesidades específicas de su negocio. Con una construcción total de 160 metros cuadrados, se garantiza un ambiente cómodo y funcional que exaltará las operaciones diarias de cualquier proyecto.

Este local  local está insonorizado y con salida de humos. Actualmente funcionando como cafetería con una buena clientela.

Se localiza en una zona estratégica de la ciudad, permitiendo un fácil acceso a través de múltiples opciones de transporte público. La cercanía a paradas de autobús asegura una fluidez en el acceso para empleados, clientes y proveedores, aumentando así el potencial de visibilidad y afluencia. La excelente ubicación facilita el flujo constante de tráfico peatonal, lo que representa una oportunidad inmejorable para negocios que dependen de una alta exposición.

Las instalaciones del local abren un mundo de posibilidades para su adecuación, ya sea que su enfoque esté en el comercio minorista, la hostelería o cualquier tipo de servicio. El diseño del espacio le ofrece una gran adaptabilidad, permitiendo una disposición óptima para mostrar productos, atender clientes o realizar diversas actividades. Constituye el escenario perfecto para conceptualizar un ambiente que refleje su marca y atrape a su público objetivo.

Le invitamos a coordinar una visita para descubrir de primera mano todo lo que este local tiene para ofrecer. Durante el recorrido, podrá apreciar la versatilidad del espacio y visualizar cómo puede convertirse en el próximo hogar de su negocio exitoso. La experiencia directa del entorno y sus características únicas le permitirá evaluar todos los aspectos que lo hacen una oferta tan atractiva y conveniente. No deje pasar esta oportunidad única de asegurar un espacio estratégico en Gijón, donde su negocio podrá crecer y prosperar en un entorno dinámico y favorable.

El precio no incluye gastos de notaría, registro e impuesto de transmisiones

QRE - Agencia Domingo

Solicita más información

Accede a la intranet QRE