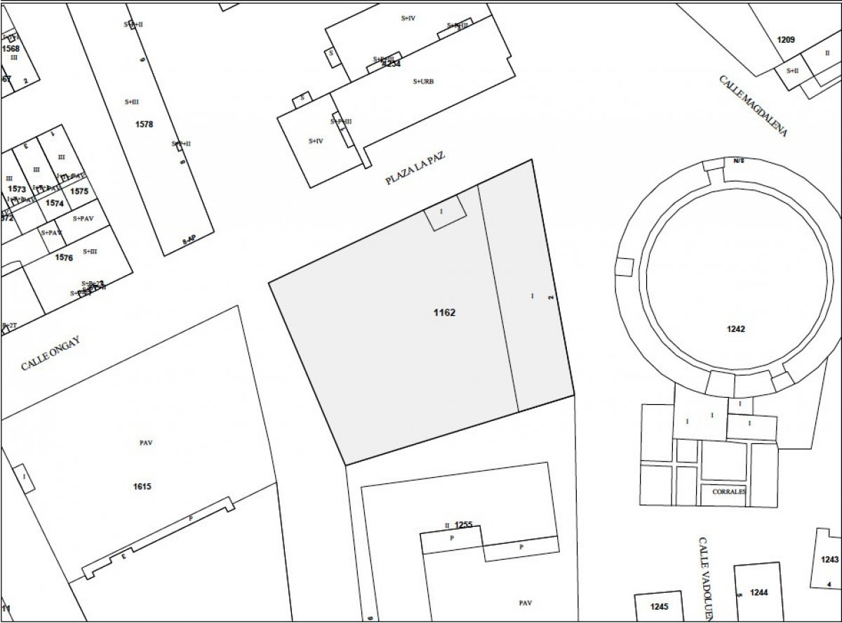
Terreno en Sangüesa-Zangoza (Navarra) – 25.116123

697.000 €

Para el desarrollo de proyectos inmobiliarios en la actualidad, el inversor que compre un solar edificable deberá encontrar viabilidad a su inversión con las condiciones actuales y teniendo en cuenta las expectativas futuras a corto plazo.. . En éste caso, en la ciudad de Sangüesa donde se sitúa éste solar, un inversor debe contar con un proyecto como Muga, un proyecto minero que generará mas de 800 puestos de trabajo, que perdurará por varias décadas y que por tanto ofrece la oportunidad de crear un beneficio sostenible por un largo periodo a las administraciones y habitantes de la región. Cuando esté en plena producción, sólo en el proyecto Muga, se estima una creación de empleo de alrededor de 800 puestos de trabajo directos entre operarios, administrativos, técnicos y logística. Pero el proyecto también contribuirá a la creación de oportunidades de empleo indirecto en Sangüesa, multiplicando la cifra de empleo directo generado.. . Un proyecto industrial de esta magnitud traerá consigo grandes beneficios sociales por la riqueza que generará a su alrededor y el impulso socioeconómico que supondrá para la región. La aprobación de este proyecto significa no sólo un beneficio directo, por la generación de empleo que conlleva, sino también indirecto, vía impuestos, programas sociales, desarrollo de oportunidades de negocio, entre otros.. . En ese contexto tan interesante es donde se generan unas expectativas habitacionales que impulsarán el mercado inmobiliario local y que es lo que hace éste solar tan interesante.. 

COMPROMETIDOS CON LA SOCIEDAD, COMPROMETIDOS CONTIGO.

– Realizamos reportajes audiovisuales con estrictos protocolos de seguridad en casas vacías.

– Realizamos visitas a viviendas con el kit de prevención y las precauciones necesarias.

– En nuestras oficinas encontrarás gel desinfectante, mascarillas, guantes y patucos para tu protección.

– Firma de documentos digital.

QRE - A10 Inmobiliaria

Solicita más información

Accede a la intranet QRE